5款农村中式四合院别墅设计图,实用经典,做民宿很有特色
5款农村中式四合院别墅设计图,实用经典,做民宿很有特色
旧房子变成了洋房,原本记忆力硬朗的老人也已经白发苍苍,小村庄的巷子铺了水泥路,池塘边建了小公园,学校里的篮球场也建新了,村口大树没了,和记忆里的童年差别很大。

如果农村的房子也像图上是这么整齐的中式合院别墅,有公共厕所,公交车到村里,那么应该会有很多人抢着住在农村吧!
四合院真的很美啊,如果有钱有地,那必须得建四合院别墅啊,你们说是吗?

一层中式合院别墅,建筑尺寸14.7米×27.9米 占地面积364.13平方米,建筑面积336.61平方米。清雅的颜色与传统瓦片打造出清爽、典雅的视觉效果。后期也可用红色材料装饰,那也别有一番风味。室内多个卧室均带有内卫设计,可以作为民宿。

功能设计:大堂、大餐厅(带洗碗区)、客厅、茶室、厨房(带储藏间)、小餐厅、小客厅、4卧室(带独卫)、卧室(带衣帽间、内卫)、书房、停车位
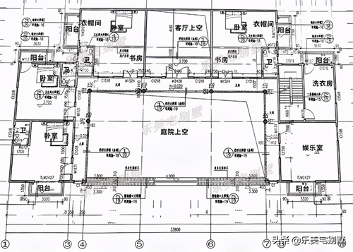
02

农村三层三合院房屋设计图,白墙黛瓦搭配红色护栏、圆柱,非常的喜庆。建筑分为正房和东西厢房,正房设计了正厅,左右2间 共有6个套房,还设有娱乐室,也可作为民宿娱乐待客。
开间33.9米 进深:18.34米 占地面积:569.34平方米 总建筑面积:918.23平方米

一层:庭院、餐厅、厨房、客厅、2套间(卧室、书房、衣帽间、内卫)、2卧室(带内卫)、公共卫生间

二层:娱乐室(带阳台)、洗衣房(带阳台)、2套间(卧室、书房、衣帽间、内卫)、2卧室(带内卫、阳台)

三层:客厅、2露台、杂物房、2套间(卧室、书房、衣帽间、内卫)
03

该户型设计是典型的中式建筑风格,长门廊的设计,坡面的屋顶,木质的栏杆,这些古典元素彰显出中华民族的内涵,弥漫着古韵。室内共设计有8个卧室,适合农村大家庭居住。

编号: B132层数: 二层结构形式: 框架结构主体造价: 51-58万
开间:19米进深:16.38米占地面积:321.22平方米总建筑面积:642.44平方米

一 层:门廊、挑空客厅、卧室×4、卫生间、浴室、洗衣房、衣帽间

二 层:卧室×4、卫浴室、卫生间×3、浴室、衣帽间、外廊
04

如果宅基地有限,那么盖这栋中式别墅也挺好,外观设计素雅,低调不张扬却难以让人忽视。一楼入户是中堂,符合农村房屋布局,右侧客厅和餐厅互通,空间更加宽敞明亮。共有6间卧室,卫生间和淋浴间分开,干湿分离,满足现代人对于住宅的需求。
开间:12米 进深:11米 占地面积:132.37平方米 总建筑面积:250.82平方米
建筑结构:框架结构 主体预算:22-28万

一层:中堂、客厅、餐厅、厨房、设备间、2卧室、卫生间、淋浴间

二层:客厅、起居室、4卧室、书房、露台、卫生间、淋浴间
05

客厅宽敞,主房卧室均带内卫,客卧均近卫生间,厨房餐厅位于东边,整体结构合理,功能区分明确,内庭院内可以约上好友一起喝茶聊天,非常不错,是不可多得的农村二层经典三合院设计图。
编号:zcB182层数:二层 结构形式:砖混结构 主体造价:40-45万
开间:15.6米 进深:15 占地面积:219.06平方米 总建筑面积:388.51平方米


一 层: 庭院、餐厅、客厅、厨房、2卧室(带内卫)、2间厢房卧室、公用卫生间

二 层: 客厅、儿童卧室( 带衣帽间)、2个主人卧室(带内卫)、2厢房卧室、公用卫生间
-
- 【中国足球人物志】错过留洋曼联的金头老茂——宿茂臻
-
2025-12-28 13:13:07
-
- 杨思敏版《金瓶梅》为何被禁播?其艺术、争议与人生传奇揭开
-
2025-12-28 13:10:52
-
- 如何求解简单情况下的NS方程?《张朝阳的物理课》推导椭圆管中
-
2025-12-28 13:08:38
-
- 欺诈的定义和例子
-
2025-12-28 13:06:24
-
- 永不消失的电波
-
2025-12-28 13:04:09
-
- 全国47所高中排名!第一名居然是河北衡水高中,清华附中排第三?
-
2025-12-28 13:01:55
-
- 韩国国民咖啡——MAXIM的前世今生
-
2025-12-28 12:59:41
-
- 蹦床公主何雯娜,为何放弃吊环王陈一冰,转身嫁给长相普通的梁超
-
2025-12-28 12:57:26
-
- 他是最年轻的开国少将,官至大军区副司令员,69岁因车祸去世
-
2025-12-28 12:55:12
-
- 精选适合冬季游玩的城市
-
2025-12-27 05:53:06
-
- 泗阳:城市有温情 百姓更幸福
-
2025-12-27 05:50:51
-
- 分享全国县级城市:黑龙江(12)——泰来县
-
2025-12-27 05:48:37
-
- 中国最著名的5条步行街,分别在这五个城市
-
2025-12-27 05:46:23
-
- 东北曾经辉煌过的城市有哪些?
-
2025-12-27 05:44:09
-
- 【创建文明城市】巴林左旗教育系统:多措并举扎实推进创建自治区文明城市工作
-
2025-12-27 05:41:54
-
- 2020年2月南加州大洛杉矶主要城市房产交易报告
-
2025-12-27 05:39:40
-
- 天津:从二线城市走向一线?
-
2025-12-27 05:37:26
-
- 东北城市繁荣度排名出炉,沈阳与哈尔滨大幅领先大连、长春等城市
-
2025-12-27 05:35:11
-
- 湖南最小的城市湘潭市别名“莲城”“潭城”
-
2025-12-27 05:32:57
-
- 最新!2019上半年中国城市GDP百强榜单
-
2025-12-26 15:35:41



五本评分很高的自闭症男主文:你拥有全世界,而我的世界只有你
1995年,吴毅将与钟淑慧合作限制级电影,尺度敏感删减9分钟
每日推书!五本牧场流小说,平平淡淡,我就养牛养马
宝藏女孩——陈钰琪全图写真合集
解放战争,林彪为何被叫“101”?这个代号有何寓意?
史上最全QQ官方经典头像全面翻新,不光高清还会动
潘春春:从陕北放羊娃到“中国波霸”的逆袭人生
推荐九本模拟经营小说,经营领地和商铺(二)
圣女贞德:美貌绝伦,率军抗击侵略者,落入敌手惨遭凌辱受刑而亡
《温柔的谎言》女主安然的堕落,到底是因为爱慕虚荣还是被陷害?